Уважаемые  инвесторы.
В паркинге, под корпусами 1-4 («А», «Б», «В», «Г»), имеются свободные паркоместа. 
Кол-во мест ограничено.

  • Общая информация
  • Инфраструктура
  • Техническая информация
  • Планировки
  • Цены
  • Фотоотчет
  • Видео

ГОТОВНОСТЬ ОБЪЕКТА

Устройство фундамента

Возведение каркаса здания

Кладка наружных и внутренних стен

Фасадные работы

Устройство кровли

Устройство внутренних коммуникаций

Внутренняя отделка помещений

Благоустройство территории

* Ответственный – Цвиркун Сергей Сергеевич

Французский бульвар

  • Французский бульвар, 26 корп. 1
  • Секции «А», «Б», «В», «Г», «Д», «Е» - введены в эксплуатацию
  • Французский бульвар - курортная зона города, где акации и морской воздух создают атмосферу отдыха и покоя, что так похоже на образ старой Одессы.
  • Большое количество домов отдыха и санаториев вдоль морской стороны говорит о хорошей экологии этого района. В этом уютном месте находится новый жилой комплекс «Французский».
  • Комплекс представлен шестью секциями, четыре из которых уже сданы и введены в эксплуатацию, сдача еще двух запланирована на ближайшее время.
  • Каждый дом имеет 23 этажа и относится к жилью современного бизнес-класса.
  • Дома объединены общим дизайном и архитектурным стилем.
  • Развитая инфраструктура, тишина и чистый морской воздух стали удачным сочетанием для комфорта и удобства проживания.
  • Создатели проекта позаботились о том, чтобы планировочные решения были достаточно разнообразны и смогли удовлетворить даже самых требовательных клиентов. Из окон открывается живописный морской пейзаж или вид на колоритную историческую часть города.
  • Наличие террас позволяет устраивать сезонные барбекю, не покидая квартиры.
  • Проектом предусмотрены:
  • 1-комнатные квартиры площадью от 60,6 кв.м.
  • 2-комнатные квартиры площадью от 79,3 кв.м.
  • 3-комнатные квартиры площадью - 106,5 кв.м.
  • 4-комнатные двухуровневые квартиры площадью - 139,1 кв.м.
  • 5-комнатные двухуровневые квартиры площадью от 122,5 кв.м.
  • Паркинги от 14,9 кв.м.
  • Кладовки - 2,5 кв.м.

ГОТОВНОСТЬ ОБЪЕКТА

Устройство фундамента

Возведение каркаса здания

Кладка наружных и внутренних стен

Фасадные работы

Устройство кровли

Устройство внутренних коммуникаций

Внутренняя отделка помещений

Благоустройство территории

* Ответственный – Цвиркун Сергей Сергеевич

Французский бульвар

    • Группа 23-этажных монолитно-каркасных домов с паркингом. Объект располагается в престижном районе города, неподалеку от Французского бульвара и Шампанского переулка.

      Начало строительства: IV квартал 2013 г.
      Окончание строительства: II кв. 2016 г.
      Подрядчик: ООО "Стикон".
      Заказчик: ОНУ им. Мечникова.
      Месторасположение: Французский бульвар, 26 корп. 1

      ИНЖЕНЕРНЫЕ СИСТЕМЫ
      Тип проекта: монолитно-каркасный.
      Фундамент: свайный. 
      Материал постройки внутренних и наружных стен: газобетон и керамический кирпич.
      Перекрытия: монолитные железобетонные.
      Кровля: совмещенная (мягкая с металлочерепицей).
      Пол: стяжка, за исключением санузлов.
      Наружная отделка фасада: облицовочный керамический кирпич.
      Внутренняя отделка стен: без отделки, кроме мест общего пользования.
      Высота потолков (м): 3 м.
      Система отопления:котельная оборудованная котлами фирмы Viessmann, внутриквартирная разводка из труб (из шитого полипропилена фирмы Rehau), с установкой в квартиру отопительных приборов фирмы Vonova (производства Vogel & Noot, Австрия), терморегулирующее оборудование фирмы Danfoss. 
      Окна: металлопластиковые окна из профиля фирмы Rehau (Австрия), фурнитура фирмы Roto, энергосберегающие стеклопакеты. 

      ВНУТРЕННИЕ ИНЖЕНЕРНЫЕ СЕТИ 
      Электроснабжение: ввод в квартиры, установка счетчиков и автоматов в этажных щитах. 
      Водопровод: стояки холодной, горячей воды с установкой счетчиков. 
      Канализация: стояки бесшумной канализации фирмы Rehau. 

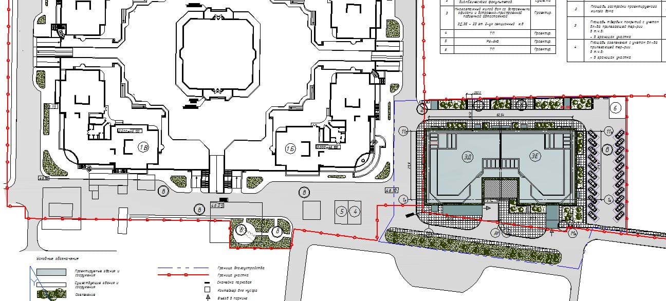
Генплан

План паркинга

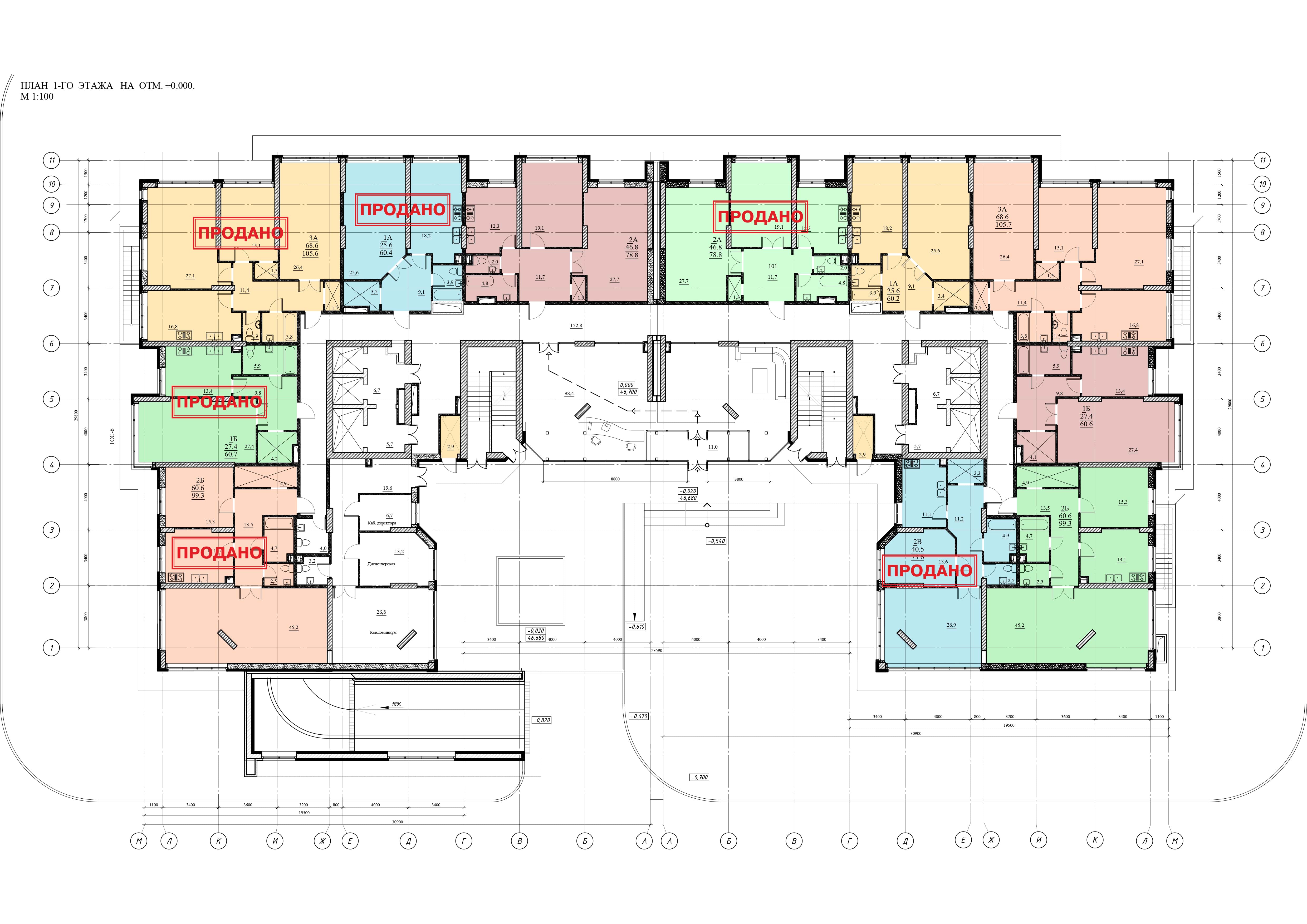
План 1 этажа

План 2 этажа

План 3-6 этажа

План 7-21 этажа

План 22 этажа

План 23 этажа

Секции «Д» «Е» - введены в эксплуатацию

Количество комнат Площадь (кв.м.) Цена за 1 кв.м. (у.е.) Цена за объект (у.е.)
1-комнатная квартира 60,6 - 60,9 1 100 66 660 - 66 990
2-комнатная квартира 79,3 - 100,7 1 100 - 1 150 91 195 - 110 770
3-комнатная квартира 106,5-108,8 1 100 117 150 - 119 680
4-комнатная двухуровневая квартира 139,1 1 040 144 664
5-комнатная двухуровневая квартира 122,5 - 125,3 1 040 127 400 - 130 312
Паркинг 14,9 - 19,8 840 12 516 - 16 632
Кладовка 2,5 1 000 2 500


Секция «А» - «Г» - введены в эксплуатацию

Количество комнат Площадь (кв.м.) Цена за 1 кв.м. (у.е.) Цена за объект (у.е)
Офис, секция «Г», 1 эт. 168,5 1 200 202 200
Паркинг 11,1 - 43,1 670 - 770 7 437 - 29 491