ТЕНДЕР ПО ЗАКУПКЕ ЩИТОВ ЭТАЖНЫХ

Для подачи заявки на участие в тендере просьба высылать Ваши коммерческие предложения на электронную почту e-mail: tender@stikon.od.ua
ЛОТ №1
- Наименование: Щит этажный
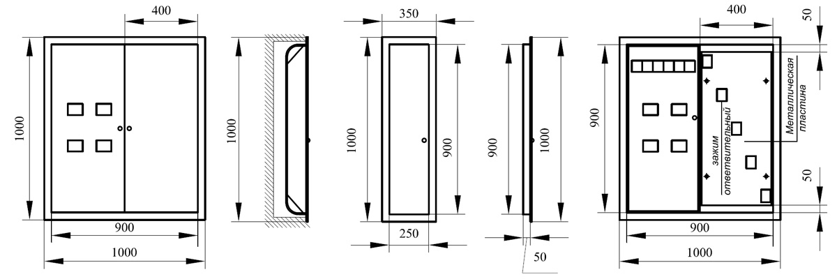
- Количество и размеры: Скачать
- Щиты этажные должны соответствуют требованиям ГОСТ 9413 и ТУ РБ 100357142.007-2001.
- Щит этажный поставляется с разводкой ПВ 3нг-LS. согласно схем без приборов учета и должны быть укомплектованы автоматическими выключателями одного из следующих производителей: Hager, Legrand, ETI, Eaton, Schneider Electric.
- Корпус щита этажного выполнить с перечисленными ниже требованиями
Материал- металл, толщиной:
- рамка 2мм.,
- внутренние несущие детали 1,5мм.,
- дверцы 1.0мм. с усилителями жесткости
- в местах крепления метал 3мм.
- наличник шириной 50мм. с дополнительным загибом на 10мм. (для дополнительной жесткости)
- Установить розетку на DIN рейку в каждом щите
- Покраска-порошковыми красками типа RAL 7047
- Кабельный разветвитель СV-95.
- Щит выполнить в трех дверном исполнении.
- Замок дверцы силового отсека типа MESAN (серцевина с секретом, замок с трехсторонним запиранием), тип замка прилагается.
- Силовой отсек должен быть закрыт защитным экраном (закрыты токоведущие части при открытой дверце) предусмотреть возможность пломбирования
- В дверях отдела учета сделать смотровые окна для счетчиков.
- Количество окон выполнить в соответствии с количеством приборов учета.
- Дверца отдела учета отрывается только после открытия дверцы силового отсека
- Замок дверцы автоматических выключателей, металлический, без секрета.
- Защитный экран автоматических выключателей в антивандальном исполнении (исключить возможность демонтажа экрана при закрытой дверце счетчиков) предусмотреть возможность пломбирования
- В случае выбора нового поставщика предоставить опытный образец
- Поставка товара: 24.03.2021 г.
- Условия поставки: доставка на склад покупателя транспортом поставщика.
- Оплата товара: 50% предоплата, 50% после письменного уведомления о готовности оборудования к отгрузке
- Дата проведения тендера: 24 ФЕВРАЛЯ 2021г.
- Вид тендера: Открытый с ограниченным участием
- Статус тендера: СОСТОЯЛСЯ
ДАТА ПОДАЧИ СПЕЦИФИКАЦИИ 22.02.2021г.