ТЕНДЕР ПО ЗАКУПКЕ ДВЕРЕЙ ПРОТИВОПОЖАРНЫХ

Для подачи заявки на участие в тендере просьба высылать Ваши коммерческие предложения на электронную почту e-mail: tender@stikon.od.ua
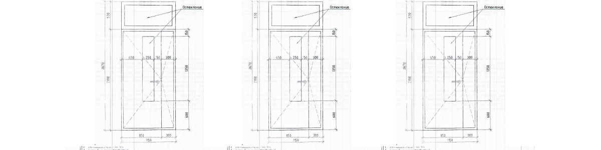
- Наименование: Металлические двери ЛЕВЫЕ-30 шт, ПРАВЫЕ-29 шт, размер 1150х2650 ПРОТИВОПОЖАРНЫЕ ЕІ 60 з ДСТУ Б В.2.6-11-2011
- Характеристики и количество: 59 шт. Цена должна быть указана с учетом доставки на объект и установки. Гарантия 3 года.
-
Короб:
Цельногнутый профиль 90мм c наличником, толщина метала 1.5мм, утепленный мин ватой окрашен полимерным тефлоновым порошком Ral 7016.
Размер 1150*2650
- Полотно:
Профиль из холоднокатаной стали с ребрами жесткости и цельный стальной лист по полотну снаружи 1,5мм изнутри 1,5мм, торцы и лист окрашены полимерным порошком Ral 7016; толщина полотна 58мм. Покраска тефлоновым полимерным порошком.
- Петли:
Петли на подшипниках 3шт
- Антисрезы:
Два антисреза
- Утепление:
Наполнитель минеральная вата 70кг м3 + Гипс ГВЛ
- Уплотнение:
Однорядный уплотнитель на коробе и двухрядный на полотне + терморасширяющий уплотнитель ОГАРКС.
- Отделка:
Металл с двух сторон окрашен полимерным порошком RAL 7016. Армированный стеклопакет на фрамуге и полотне (согласно тех. задания).
- Замки, фурнитура:
Замок противопожарный NEMEF 1739/03 ZN (либо аналог), ручка NEMEF 2916/02 дуга. Доводчик Fuaro DC – 205 BR на 100 кг.
- Поставка товара: поставка в течении 28 календарных дней. При поставке предоставлять следующие документы: ТТН накладная, расходная накладная, сертификат качества, паспорт и протокол испытания!
- Условия поставки: обязательные условия при поставке товара (дверей) на объект являются выборочное вскрытие одной двери и детальное сравнение, согласно данной спецификации, о наличии и качестве используемого материала при производстве дверей, в присутствии представителя со стороны поставщика
- Оплата товара: отсрочка платежа 30 дней!
- Дата проведения тендера: 30.04.2020г
- Вид тендера: открытый с ограниченным участием
- Статус тендера: СОСТОЯЛСЯ
ДАТА ПОДАЧИ СПЕЦИФИКАЦИИ 15.04.2020г.