Уважаемые инвесторы жилого комплекса «Люксембург»!
В Ваших секциях поступили в продажу кладовые помещения.
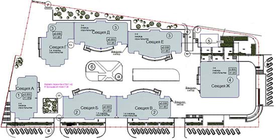
Секция А - цоколь; Секция Б - 17 этаж; Секция В - 17 этаж; Секция Г - 8 этаж; Секция Д - 15 этаж

  • Общая информация
  • Инфраструктура
  • Техническая информация
  • Планировки
  • Фотоотчет

ГОТОВНОСТЬ ОБЪЕКТА

Устройство фундамента

Возведение каркаса здания

Кладка наружных и внутренних стен

Фасадные работы

Устройство кровли

Устройство внутренних коммуникаций

Внутренняя отделка помещений

Благоустройство территории

* Ответственный – Кистол Виктор Александрович

ЖК "Люксембург"

  • ул. Средняя, 24
  • Секции А, Б, В, Г, Д, Е, Ж - введены в эксплуатацию.
  • Купить квартиру в ЖК "Люксембург" - значит прикоснуться к истории. Жилой комплекс расположен в исторической части города, на пересечении улиц Косвенная и Средняя.
  • Жителей ЖК "Люксембург" будет окружать не только атмосфера комфорта, но и чудесная атмосфера старины. Здесь соседствуют дома современной и старинной застройки..
  • Удобное расположение комплекса позволяет за несколько минут дойти до Староконного рынка, продовольственного рынка, автовокзала, а ближе к Михайловской площади находится уютный парк, в котором с удовольствием гуляют дети.
  • В доме расположен крупный супермаркет, что позволяет делать покупки и получать необходимые услуги прямо в доме.
  • Комплекс идеально подойдет для семей, которые хотят жить в современном жилом комплексе в самом сердце старой Одессы.
  • Проектом предусмотрены:
  • 1-комнатные квартиры площадью - 49,0 кв.м.
  • 3-комнатные двухуровневые квартиры площадью - 106,8 кв. м.
  • 4-комнатные двухуровневые квартиры площадью - 133,5 кв.м.
  • Кладовка от 1,7 кв.м.
  • Офис от 195,7 кв.м.

ГОТОВНОСТЬ ОБЪЕКТА

Устройство фундамента

Возведение каркаса здания

Кладка наружных и внутренних стен

Фасадные работы

Устройство кровли

Устройство внутренних коммуникаций

Внутренняя отделка помещений

Благоустройство территории

* Ответственный – Кистол Виктор Александрович

ЖК "Люксембург"

  • Группа 16-этажных жилых домов с офисными и торговыми помещениями и подземным паркингом по ул. Косвенная угол Средней в г. Одессе.

    Начало строительства: 2010 г.
    Окончание строительства: секции А, Б, В, Г, Д, Е, Ж - введены в эксплуатацию.
    Подрядчик: ООО "Стикон"
    Заказчик: ЧП "ГЛАВБЫТПРОМ"
    Месторасположение: ул. Косвенная угол Средней

    ИНЖЕНЕРНЫЕ СИСТЕМЫ
    Тип проекта: монолитно-каркасный 
    Фундамент: свайный 
    Материал постройки внутренних и наружных стен: газобетон и керамический кирпич
    Перекрытия: монолитные железобетонные 
    Кровля: плоская совмещенная 
    Пол: стяжка, за исключением санузлов 
    Наружная отделка фасада: облицовочный керамический кирпич  
    Внутренняя отделка стен: без отделки, кроме мест общего пользования
    Высота потолков (м): 2,7 м 
    Система отопления: отельная оборудованная котлами фирмы Viessmann, внутриквартирная разводка из металлопластиковых труб фирмы Rehau, с установкой в квартиру отопительных приборов фирмы Vonova (производства Vogel & Noot, Австрия), терморегулирующее оборудование фирмы Danfoss 
    Окна: металлопластиковые окна из профиля фирмы Rehau (Австрия), фурнитура фирмы Roto, энергосберегающие стеклопакеты 

    ВНУТРЕННИЕ ИНЖЕНЕРНЫЕ СЕТИ 
    Электроснабжение: ввод в квартиры, установка счетчиков и автоматов в этажных щитах 
    Водопровод: стояки холодной, горячей воды с установкой счетчиков  

    Под комплексом домов находится подземный паркинг, кроме того на придомовой территории устроен гостевой паркинг. 
    В каждой секции здания два лифта (один пассажирский и один грузопассаржирский) фирмы «ОТИС», Украина.

Генплан

Кладовки в цоколе, секц. А

Тех. этаж секция "В"

2-к, 11 этаж, Секция "А"

4-к, 2-ур, 16-17 этаж