Обратите внимание!
Наш внутренний курс валют всегда ниже обменного.
Этот объект сейчас
просматривают:
  • Общая информация
  • Инфраструктура
  • Техническая информация
  • Планировки
  • Варианты перепланировок
  • Цены
  • Фотоотчет
  • Видео

Смотреть галерею

Секции 1.1-1.4 - введены в эксплуатацию.

ГОТОВНОСТЬ ОБЪЕКТА (Секции 2.1-2.3)

Устройство фундамента

100%

Возведение каркаса здания

100%

Кладка наружных и внутренних стен

68%

Фасадные работы

10%

Устройство кровли

0%

Устройство внутренних коммуникаций

15%

Внутренняя отделка помещений

20%

Благоустройство территории

0%
* Ответственный – Гаврик Александр Григорьевич

Жилой комплекс MODERN

Ввод в эксплуатацию I пускового этапа (секции 1.1 - 1.4) - введены в эксплуатацию.

Ввод в эксплуатацию II пускового этапа (секции 2.1 - 2.3) - III квартал 2026 г.

  • ул. И.Франко, 40 (6-я станция Фонтана)

Ультрасовременный жилой комплекс бизнес – класса расположен по адресу: ул. И. Франко, 40, 6-я станция Фонтана.

  • Уникальная эстетика, оригинальный фасад
  • Лучшая локация на 6й станции Фонтана
  • Ландшафтный дизайн территории
  • Дизайнерский холл и общественные зоны
  • Многоуровневая система безопасности
  • Консьерж сервис
  • Собственная библиотека и лаунж зона
  • Двор без машин

Смотреть галерею

Секции 1.1-1.4 - введены в эксплуатацию.

ГОТОВНОСТЬ ОБЪЕКТА (Секции 2.1-2.3)

Устройство фундамента

100%

Возведение каркаса здания

100%

Кладка наружных и внутренних стен

68%

Фасадные работы

10%

Устройство кровли

0%

Устройство внутренних коммуникаций

15%

Внутренняя отделка помещений

20%

Благоустройство территории

0%
* Ответственный – Гаврик Александр Григорьевич

Жилой комплекс MODERN

    • Многоэтажный жилой комплекс с подземным паркингом и объектами социально-бытового назначения.

      Начало строительства: I пускового этапа (секции 1.1 – 1.4) – I квартал 2019 г.
      Окончание строительства: 
      I пускового этапа (секции 1.1 – 1.4) – введены в эксплуатацию.
      II пускового этапа (секции 2.1 – 2.3) – III квартал 2026 г.
      Подрядчик: ООО "Стикон".
      Заказчик: Министерство обороны Украины
      Месторасположение: ул. И.Франко, 40 (6-я станция Фонтана)

      ИНЖЕНЕРНЫЕ СИСТЕМЫ
      Конструктивная схема монолитный железобетонный каркас с вертикальными диафрагмами и ядрами жесткости
      Фундамент: свайный
      Кровля: плоская с внутренним водоотводом
      Пол: цементно-песчаная стяжка за исключением с/у
      Комбинированная наружная отделка фасада: вентилируемый фасад из керамогранитных плит, отделка под клинкерный кирпич и декоративная штукатурка
      Наружные стены:  керамический блок
      Внутренние перегородки: межквартирные и квартирные газобетонные блоки.
      Внутренняя отделка стен мест общего пользования: оштукатуривание и финишная отделка
      Высота помещений (м):  2,70 м.
      Окна: трехкамерный профиль фирмы Rehau с энергосберегающими стеклопакетами.
      Лифты: в каждой секции предусмотрено три лифта (два пассажирских и один грузопассажирский
       

      Инженерные коммуникации (отопление, водоснабжение, электроснабжение) с узлами учета размещены в отдельных помещениях на этажах вне квартир.

      Электроснабжение:  осуществляется от двух независимых высоковольтных вводов с установкой на площадке центрального распределительного пункта и трансформаторных подстанций. Вводы в квартиры выполнены из проводов с медными жилами.
      Водопровод:  осуществляется от двух вводов через баки запаса воды с повысительной насосной. Трубопроводы ввода в квартиры.
      Система отопления:  от автономной крышной котельной. Система отопления двухтрубная тупиковая с горизонтальной поквартирной разводкой. Радиаторы стальные панельные с установкой запорно-регулирующей арматуры.
       

Генплан

Паркінг

Паркинг (2-я очередь)

 

I ПУСКОВОЙ ЭТАП

 

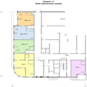
План цокольного этажа

План 1-го этажа

План 2-го этажа

План 3-го этажа

План 4-6; 8-23 этажей

План 7-го этажа

План 24-го этажа

План цокольного этажа

План 1-го этажа

План 2-го этажа

План 3-го этажа

План 4-5; 7-8; 10-12; 14-23 этажей

План 6; 13 этажей

План 9-го этажа

План 24-го этажа

План цокольного этажа

План 1-го этажа

План 2-го этажа

План 3-го этажа

План 4-23 этажа

План 24-го этажа

План цокольного этажа

План 1-го этажа

План 2-го этажа

План 3-го этажа

План 4-23 этажа

План 24-го этажа

 

II ПУСКОВОЙ ЭТАП

 

План цокольного этажа

План 1-го этажа

План 2-го этажа

План 3-го этажа

План 4-23 этажа

План 24 этажа

План цокольного этажа

План 1-го этажа

План 2-го и 3-го этажа

План 4-23 этажа

План 24 этажа

План цокольного этажа

План 1-го этажа

План 2-го и 3-го этажа

План 4-23 этажа

План 24 этажа

Тип квартиры - (Секция:1.1, 1.2, 1.4)
Тип квартиры - 1B (Секция:1.3)
Тип квартиры - 1B (Секция:1.1)

Ввод в эксплуатацию II пускового этапа (секции 2.1 - 2.3) – III квартал 2026 г.

Количество комнат Площадь (кв.м.) Цена за 1 кв.м. (у.е.)* Цена за объект (у.е.)*
1-комнатная квартира 33,57 - 54,95 950 - 1150 35 584 - 54 950
2-комнатная квартира 64,34 - 85,76 920 - 1200 68 790 - 93 254
3-комнатная квартира 72,58 - 133,14 860 - 1190 82 015 - 121 157
Парковочные места 15,23 - 41,56 800 - 1500 22 845 - 36 468
Кладовые помещения 2,17 - 12,02 1100 -1200 2 604 - 20 020

* цена указана при 100% оплате. Возможна поэтапная оплата.

ОБЩИЙ ВИД
ОБЩИЙ ВИД
ОБЩИЙ ВИД
ОБЩИЙ ВИД
ОБЩИЙ ВИД
ОБЩИЙ ВИД
ОБЩИЙ ВИД
ОБЩИЙ ВИД
ОБЩИЙ ВИД
Остались вопросы?
Получите персональную консультацию!
Заказать консультацию